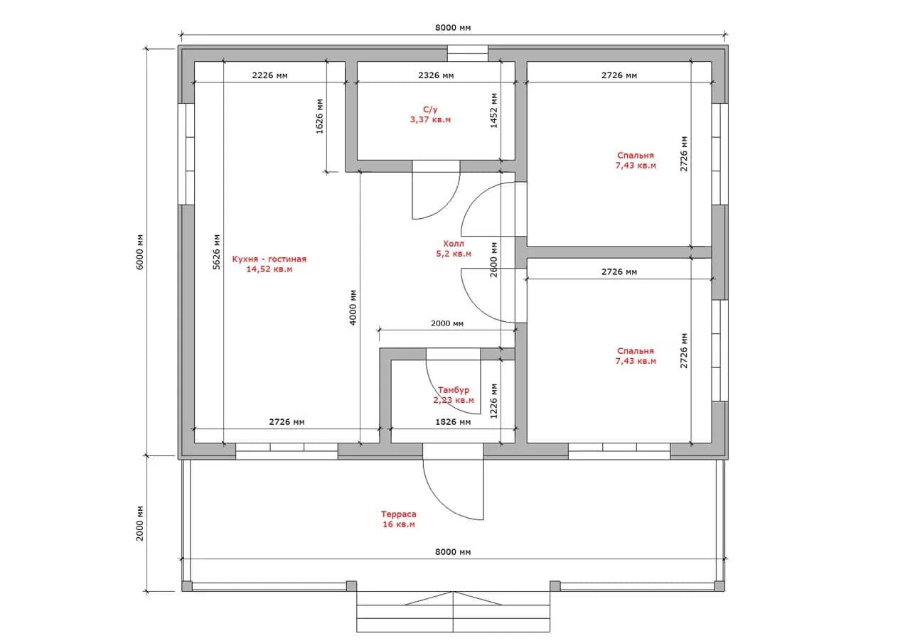
Комплектация КД 17, габариты 8*8
Круглогодичное проживание. Подходит для тех, кто хочет получить каркасный дом с минимальными затратами и планирует дальнейшую отделку самостоятельно.
В стоимость входит:
- Проект дома
- Фундамент (свайно-винтовой, сваи 2500 х 108мм. Цоколь обшивается доской строганной 20х100 мм., либо ЦСП 10мм.)
- Обвязочный ряд (брус сечением 150х150 мм. камерной сушки, обработан био -огнезащитными спецсредствами на производстве)
- Лаги (доска камерной сушки, 200х40 мм. обработана био-огнезащитными спецсредствами на производстве, шаг укладки
не более 60 см.) - Пол черновой (ОСБ 9 мм. крепление: саморезы оцинкованные. Монтаж:
сплошной настил. Сетка от грызунов не более 6мм.) - Пол чистовой (плиты Quick Deck 16мм, либо шпунтованная доска 36 мм. Отделка пола с/у - ЦСП 10мм в два слоя)
- Каркас (доска 150х40 мм камерной сушки, доска обработана био-огнезащитными спецсредствами на производстве, шаг стоек 590 мм. Утепление 150 мм ROCKWOOL скандик, либо KNAUF каркас. Обшивка снаружи имитация бруса, обшивка изнутри имитация бруса либо ГКЛ под отделку)
- Кровельное покрытие (металлочерепица либо профлист, цвет на выбор. Стропильная система: доска размером 40х150 мм. Вент зазор 40 мм., доска обработана био-огнезащитными спецсредствами на производстве, шаг укладки 590 мм. Обрешетка: доска размером 20х100 мм., доска обработана био-огнезащитными спецсредствами на производстве.
- Утепление стен и крыши (минеральная вата)
- Окна (металлопластиковые Двухкамерные стеклопакеты профиль MELKE, цвет белый, размер по проекту. Оснащение: заводская фурнитура, наличники)
- Двери (входные - металлические, межкомнатные - филёнчатые)
Рассчитайте стоимость строительства каркасного дома и получите скидку до 10%
Рассчитайте стоимость строительства каркасного дома
и получите скидку до 10%
и получите скидку до 10%
Гарантия 5 лет на все работы:
2 000 довольных клиентов
2 000 довольных клиентов
Гарантия 5 лет на все работы: 2 000 довольных клиентов
Татьяна Павловна
Каркасный дом 36 кв.м
Андрей Некрасов
Каркасный дом 60 м2
Данилин Кирилл
Каркасный дом 220м2
Скидка 10% при заключении договора до конца месяца!
Скидка 10% при заключении договора до конца месяца!
Работаем по договору
Срок строительства от 20 дней
Гарантия на работы 5 лет
0
Дней :
0 0
Часов :
0 0
Минут :
0 0
Секунд возьмем в работу только 4 заявки
Не упустите шанс обрести дом мечты и начать новую главу в своей жизни уже сегодня!
Наши специалисты помогут вам выбрать оптимальный вариант и реализовать все ваши пожелания.