Стандартная комплектация
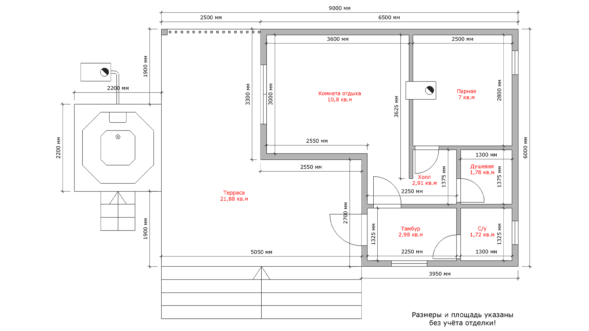
КБ51 купель
КБ51 купель
Круглогодичное использование.
В стоимость входит:
- Проект дома
- Фундамент - Свайно-винтовой, сваи 2500х108мм. Цоколь обшивается доской строганной 20х100 мм., либо ЦСП 10мм.
- Обвязочный ряд - Брус сечением 150х150 мм. камерной сушки, обработан био-огнезащитными спецсредствами на производстве. Установка: монтаж на фундамент. Гидроизоляция- РПП 300
(два слоя). - Лаги - Доска камерной сушки, 150х40 мм., прострогана на производстве, шаг укладки не более 580 мм.
- Пол черновой - ОСБ 9 мм. крепление: саморезы оцинкованные. Монтаж:сплошной настил. Сетка от грызунов не более 6мм.
- Пол чистовой - Шпунтованая доска камерной сушки 36 мм. Монтаж: саморезы в шпунт. Утепление 150 мм. Пароизоляция Ondutiss R 70. Либо подготовка под монтаж чистового пола плиты Квикдек 16 мм.
- Стены - Каркас из доски 150х40 мм камерной сушки, доска прострогана на производстве, шаг стоек 590 мм. Монтаж: гвозди, уголки, пластины, саморезы оцинкованные. Утепление 150 мм ROCKWOOL скандик либо KNAUF каркас. Ветрозащита Ondutiss А 120 снаружи. Вент зазор 40 мм. Пароизоляция Ondutiss R 70 внутри. Вент зазор 20 мм. Обшивка снаружи и внутри - имитация бруса или гипсокартон влагостойкий.
- Перегородки - Перегородки из доски 40х100 мм камерной сушки, доска прострогана на производстве, шаг стоек 590 мм. Монтаж: гвозди, уголки, пластины, саморезы оцинкованные. Утепление 100 мм ROCKWOOL скандик либо KNAUF каркас. Пароизоляция Ondutiss R 70 с двух сторон. Обшивка имитация бруса или гипсокартон влагостойкий.
- Потолок - Утепление: – 150 мм ROCKWOOL скандик либо KNAUF каркас.
Пароизоляция Ondutiss R 70. Обшивка имитация бруса или гипсокартон влагостойкий. - Парная - Осиновая вагонка класса А. Теплоизоляция - фольга. Пологи – осина класса А, 30х90 мм. Плюс спинка. Оснащение: отдушина 150х150 мм., оборудована печью Ермак, тип трубы сэндвич, экранирована кирпичом.
- Кровля - Металлочерепица либо профлист, цвет на выбор. Стропильная система: доска размером 40х150 мм. Вент зазор 40 мм., доска прострогана на производстве, шаг укладки 590 мм. Обрешетка: доска размером 20х100 мм., доска обработана био-огнезащитными спецсредствами на производстве. Пароизоляция и ветрозащита Ondutiss SA - 130 или Ondutiss D Smart RV - 120. Свесы кровли подшиваются доской строганной, камерной сушки 17х90мм
- Терраса - Столбы деревянные, сечение 140х140 мм. Ограждение: строганная доска 140х35 мм Пол: доска 140х35 мм. материал строганный, камерной сушки.
- Окна - Металлопластиковые двухкамерные стеклопакеты профиль MELKE, цвет белый, размер по проекту. Оснащение: заводская фурнитура, наличники.
- Двери - Металлическая (Россия) – для входной; Филёнчатые – для межкомнатных; Оснащение: заводская фурнитура, наличники.
Рассчитайте стоимость строительства и получите скидку до 10%
Рассчитайте стоимость строительства и получите скидку до 10%
Гарантия 5 лет на все работы:
2 000 довольных клиентов
2 000 довольных клиентов
Гарантия 5 лет на все работы: 2 000 довольных клиентов
Татьяна Павловна
Каркасный дом 36 кв.м
Андрей Некрасов
Каркасный дом 60 м2
Данилин Кирилл
Каркасный дом 220м2
Скидка 10% при заключении договора до конца месяца!
Скидка 10% при заключении договора до конца месяца!
Работаем по договору
Срок строительства от 20 дней
Гарантия на работы 5 лет
0
Дней :
0 0
Часов :
0 0
Минут :
0 0
Секунд возьмем в работу только 4 заявки
Не упустите шанс обрести дом мечты и начать новую главу в своей жизни уже сегодня!
Наши специалисты помогут вам выбрать оптимальный вариант и реализовать все ваши пожелания.